6
$1,017,900 Sale
Listed 19 hours ago
2415 Old Ironside Avenue
· 4
· 3.50
· 4
· 3496
Key Facts
Key facts for 2415 Old Ironside Avenue
Property Type
House, Single Detached
Parking
Garage,Garage Door Opener,Garage Double Door,Garage Faces Front,Garage Faces Side,Garage Single Door,Oversized 4 garage
MLS #
21081741
Size
3496 sqft
Basement
No
Listed on
-
Lot size
-
Tax
-
Days on Market
-
Year Built
2025
Maintenance Fee
-
Description
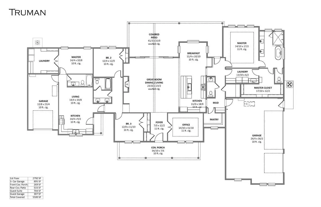
The Truman plan from the Cope Homes Luxury Series. This beautiful craftsman style home is located in the newest 1+ acre community in Van Alstyne, Capitol Hill. This home features a large open floorplan, Large Covered Patio, and Full In-Law Suite complete with its own Entry, Kitchen, Living Room, Bat...hroom, Laundry and Private 1- Car Garage. This home is perfect for multi-generational families or Buyers looking for homes with income potential. The Main Kitchen features quartz countertops, Kitchen Aid double ovens, Kitchen Aid gas cooktop and large kitchen island. The primary bedroom has an ensuite bath with a free-standing tub and dual shower heads in the walk-in shower and an oversized walk-in closet. NO HOA! Add your own shop, apartment, storage on the 1+ acre lot! If this isn't your floorplan, we have several other homes currently under construction in Capitol Hill!
Similar Properties (No results)
Listing courtesy of: Cope Realty, LLC