2
$514,900 Sale
Listed 18 hours ago
4544 Community Court
· 4
· 4.50
· 2
· 1727
Key Facts
Key facts for 4544 Community Court
Property Type
House, Single Detached
Parking
Garage,Garage Door Opener 2 garage
MLS #
21085803
Size
1727 sqft
Basement
No
Listed on
-
Lot size
-
Tax
-
Days on Market
-
Year Built
2025
Maintenance Fee
$133.33/mo
Description
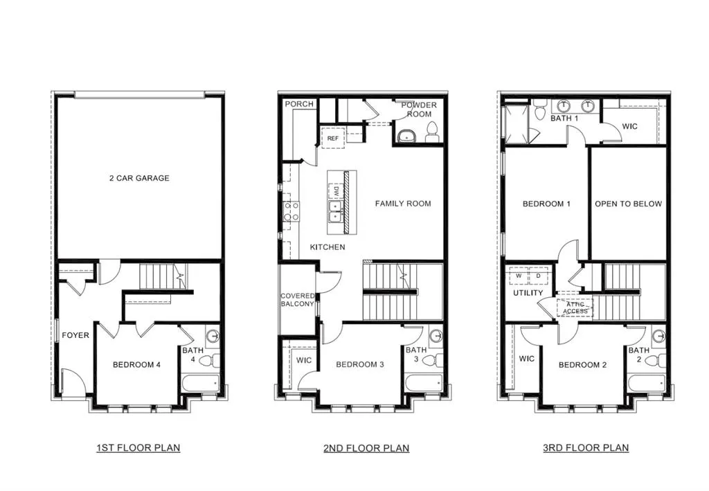
Welcome to the Mustang floorplan — a thoughtfully designed three-story home offering 1,727 square feet of modern living space. The first floor includes a private bedroom with full bath, perfect for guests or a home office, along with convenient garage access.On the second floor, enjoy open-concept l...iving with a spacious kitchen featuring an oversized island with quartz countertops, soft-close shaker-style cabinetry, and a bright family room that opens to a covered balcony — perfect for entertaining or relaxing outdoors.The third floor features the private primary suite with walk-in closet and dual vanity bath, along with two additional bedrooms each with their own bath for ultimate comfort and privacy.This home includes a two-car garage, energy-efficient features, and contemporary finishes throughout.Disclaimer: Photos shown here are representational and may include options or upgrades not included in the standard community plan. Prices, plans, features, and co-broke are subject to change without notice. Additional restrictions may apply. Square footages are approximate.
Similar Properties (No results)
Listing courtesy of: Keller Williams Realty Lone St